Μικροσκοπικό σπίτι: Έναςα κατασκευαστής του κατάφερε να χωρέσει στα 26 τετραγωνικά τα πάντα μέχρι και τζακούζι
Ένα μικροσκοπικό κι όμως παραμυθένιο σπίτι φαίνεται να ξεπήδησε από το πουθενά. Πιο συγκεκριμένα ο κατασκευαστής του, Κρις Χέινινγκ, κατάφερε να χωρέσει στα 26 τετραγωνικά αυτού του σπιτιού τα πάντα, μέχρι και τζακούζι. Ο Κρις Χέινινγκ από την Αριζόνα έβαλε όλη του την τέχνη για να αυτό το πολυτελές μικροσκοπικό σπίτι και αναμφισβήτητα κατάφερε να δημιουργήσει ένα υπέροχο παλατάκι.
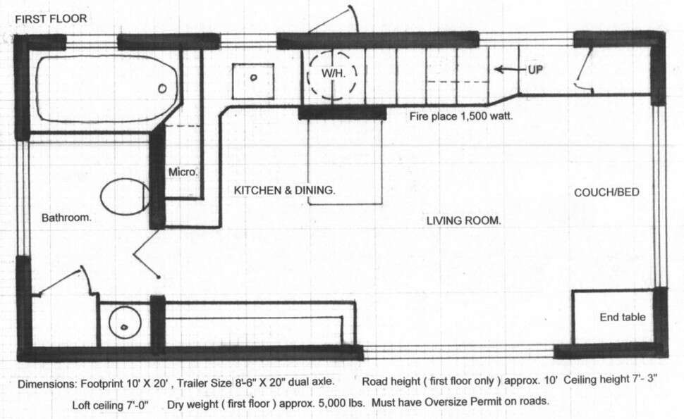
Η κουζίνα είναι πλήρως εξοπλισμένη με τις πιο σύγχρονες εντοιχισμένες ηλεκτρικές συσκευές. Αντίθετα, το μπάνιο διαθέτει ακόμη και τζακούζι. Ο Χέινινγκ εκμεταλλεύτηκε στο έπακρο κάθε ευκαιρία για αποθηκευτικό χώρο. Έτσι, δεν υπάρχει σημείο που να μην έχει αξιοποιήσει. Συνήθως επέλεγε να μετατρέπει κάθε σημείο σε κρυφή ντουλάπα.
Για να επιτύχει να έχει σε έναν τόσο μικρό χώρο και ένα ευρύχωρο σαλόνι, αλλά και μία κρεβατοκάμαρα όπου θα χωρά υπέρδιπλο κρεβάτι, κατασκεύασε έναν εσωτερικό loft. Αυτό βρισκόταν ακριβώς πάνω από την κουζίνα στον οποίο βρίσκεται το υπνοδωμάτιο. Αντίθετα, στη σκάλα που οδηγεί στη σοφίτα-κρεβατοκάμαρα, έχουν ενσωματωθεί αποθηκευτικοί χώροι, αλλά και ηλεκτρικό τζάκι.
Δείτε εικόνες από τον εσωτερικό και τον εξωτερικό χώρο του πολυτελούς μικροσκοπικού σπιτιού


